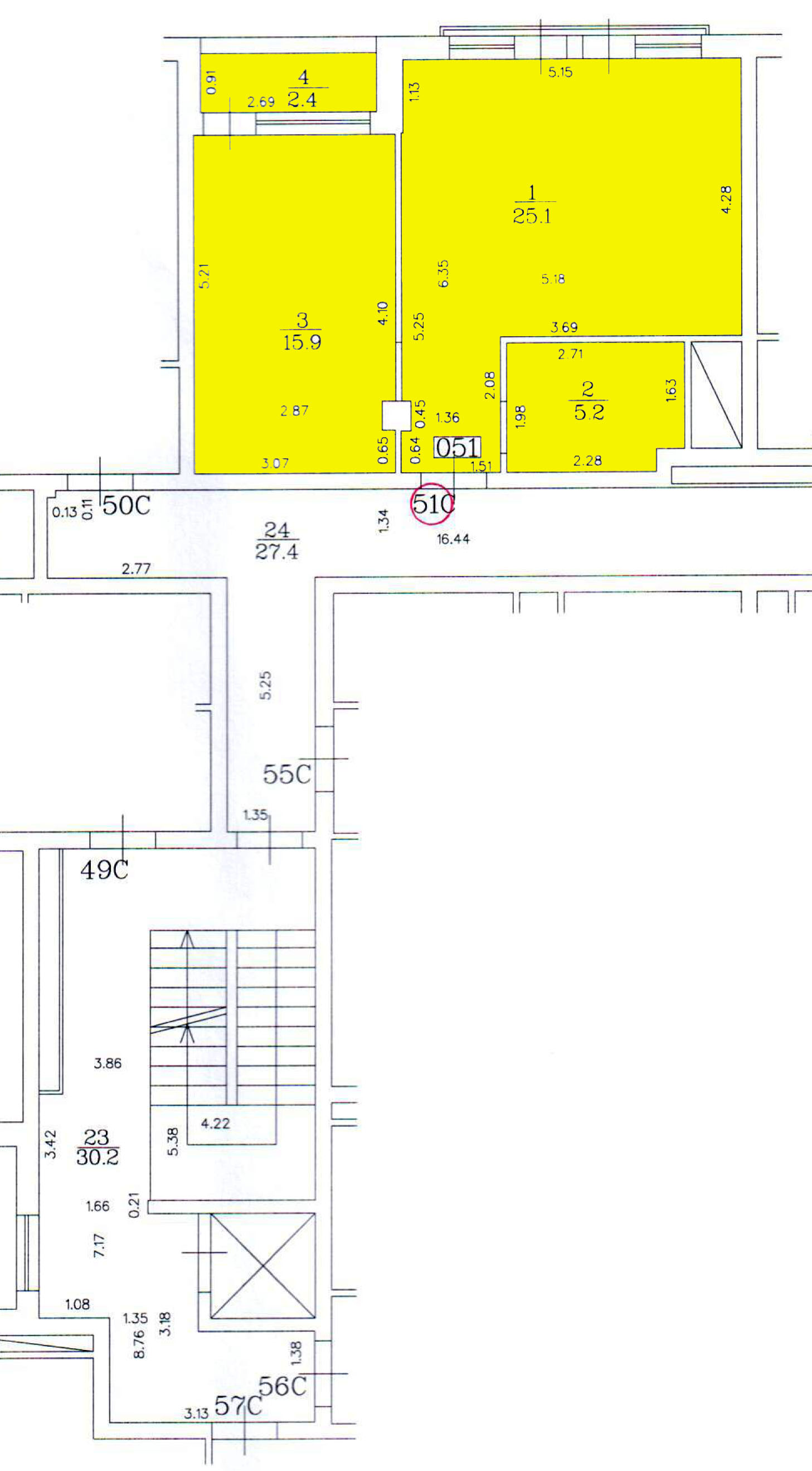
51C

Pārdošanas cena: € 63180.00
€1,300.00 Par m2
Īres maksa: € 380.00
€7.82 Par m2
Status: Pārdots
Stāvs: 3
Platība: 48.60 m2
Istabas: 2
Vannas istaba: 1
Balkons: No

Apraksts

Studio tipa, virtuve apvienota ar viesistabu un viena istaba izolēta. Iebūvēta virtuve ar sadzīves tehniku -  ledusskapis, cepeškrāsns, plīts virsma, tvaiku nosūcējs. Sanmezgls apvienots (vanna). Bez mēbelēm. Balkons.Pie ēkas ir izveidota atpūtas zona un labiekārtots bērnu rotaļu laukums.Slēgta kāpņu telpa.